Domů

Vyhledávání

Výsledky hledání

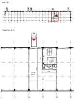
Tuchoměřice - skladové jednotky již od 200 m2

Tuchoměřice

  • Nově dokončený projekt small business units v Tuchoměřicích nabízí dvě moderní haly k pronájmu. Jednotky již od 220 m2.
  • Elegantní technické řešení haly nabízí kombinaci skladových, výrobních a obchodních prostor. Do prostor lze umístit kancelářské zázemí na míru požadavkům nájemce nebo showroom.
  • Každá z nabízených jednotek má přímý vjezd do haly a také parkovací stání pro zákazníky a zaměstnance.
  • Více
  • Prostory jsou ve stavu shell and core k nastěhování do 3 měsíců.

Dostupné jednotky

Hala

Výměra

Výška

Dostupnost

Dostupnost

Cena / měsíc

HALA B 220 m² neuvedeno 3 měsíce
HALA B 390 m² neuvedeno 3 měsíce
HALA B 752 m² neuvedeno 3 měsíce
HALA B 1 250 m² neuvedeno 3 měsíce
Kompletní přehled trhu

Vybavenost

LED osvětlení
LED osvětlení
Kancelářské prostory k pronájmu
Kancelářské prostory k pronájmu
Parkování
Parkování
Více
Přímý vjezd
Přímý vjezd
Přístup 24/7
Přístup 24/7
Vhodné pro výrobu
Vhodné pro výrobu

Mapa a okolí

Dostupné jednotky

Hala

Výměra

Dostupnost

Dostupnost

Cena / měsíc

HALA B 220 m² 3 měsíce
HALA B 390 m² 3 měsíce
HALA B 752 m² 3 měsíce
HALA B 1 250 m² 3 měsíce
Více
Kompletní přehled trhu
Skladový prostor - Tuchoměřice - skladové jednotky již od 200 m2 - Tuchoměřice
  • Skladový prostor - Tuchoměřice - skladové jednotky již od 200 m2 - Tuchoměřice
  • Skladový prostor - Tuchoměřice - skladové jednotky již od 200 m2 - Tuchoměřice
  • Skladový prostor - Tuchoměřice - skladové jednotky již od 200 m2 - Tuchoměřice
  • Skladový prostor - Tuchoměřice - skladové jednotky již od 200 m2 - Tuchoměřice
  • Skladový prostor - Tuchoměřice - skladové jednotky již od 200 m2 - Tuchoměřice
  • Skladový prostor - Tuchoměřice - skladové jednotky již od 200 m2 - Tuchoměřice
  • Skladový prostor - Tuchoměřice - skladové jednotky již od 200 m2 - Tuchoměřice

Vybavenost

LED osvětlení
LED osvětlení
Kancelářské prostory k pronájmu
Kancelářské prostory k pronájmu
Parkování
Parkování
Více
Přímý vjezd
Přímý vjezd
Přístup 24/7
Přístup 24/7
Vhodné pro výrobu
Vhodné pro výrobu
Milan Perevuzník
Konzultant

Mohly by vás zajímat i tyto nabídky

Formulář byl odeslán. Děkujeme.