Home

Search

Your results

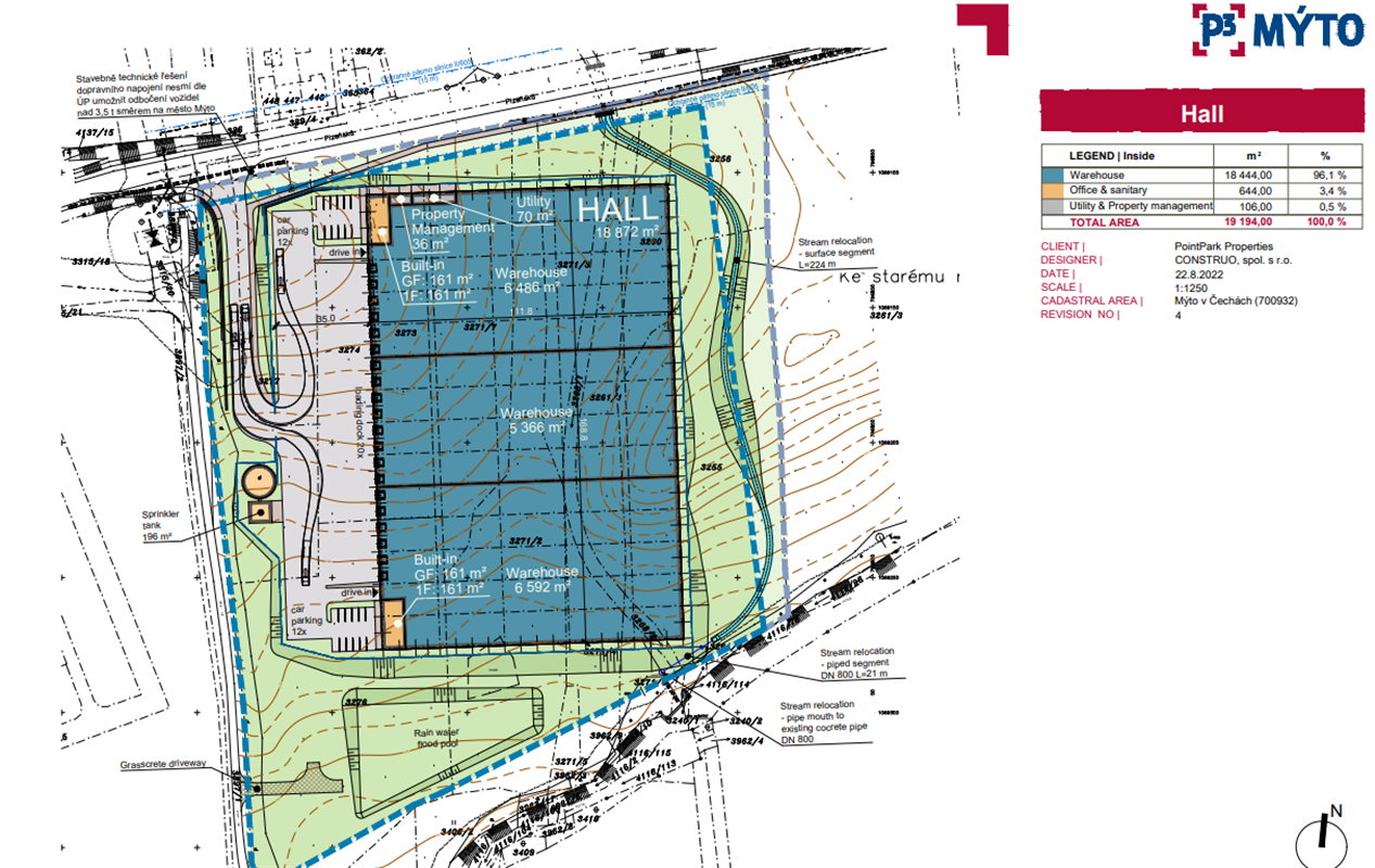
PLZEŇ EAST - Planned construction - warehouse units from 6,500 m2

Mýto

  • The planned project is strategically located in Mýto, near Pilsen, with excellent connections to the D5 motorway, which provides excellent connectivity between Prague, Pilsen and Germany.
  • This new project will comprise a modern 18,444 m2 build-to-suit building designed for a variety of logistics and industrial operations.
  • Public transport options, including nearby bus routes, make it easy for employees and visitors to get around.
  • More
  • Units from 6 500 m2.
  • Permitting processes are currently underway, with building permits expected in the first half of 2026.

Available Units

Hall

Area

Height

Availability

Availability

Rent / month

Jednotka 6 500 sqm 10 m Available immediately Yes
Hala DC1 18 444 sqm 10 m Available immediately Yes
Market overview

Amenities

Certifikace BREEAM
Certifikace BREEAM
LED osvětlení
LED osvětlení
Office space for rent
Office space for rent
More
Loading dock
Loading dock
Parking
Parking
Direct entrance
Direct entrance
24/7 access
24/7 access
Sprinklers
Sprinklers
Suitable for production
Suitable for production

Map

Available Units

Hall

Area

Availability

Availability

Rent / month

Jednotka 6 500 sqm Available immediately Yes
Hala DC1 18 444 sqm Available immediately Yes
Market overview
Skladový prostor - PLZEŇ EAST - Plánovaná výstavba - skladové jednotky od 6 500 m2 - Mýto
  • Skladový prostor - PLZEŇ EAST - Plánovaná výstavba - skladové jednotky od 6 500 m2 - Mýto
  • Skladový prostor - PLZEŇ EAST - Plánovaná výstavba - skladové jednotky od 6 500 m2 - Mýto
  • Skladový prostor - PLZEŇ EAST - Plánovaná výstavba - skladové jednotky od 6 500 m2 - Mýto

Amenities

Certifikace BREEAM
Certifikace BREEAM
LED osvětlení
LED osvětlení
Office space for rent
Office space for rent
More
Loading dock
Loading dock
Parking
Parking
Direct entrance
Direct entrance
24/7 access
24/7 access
Sprinklers
Sprinklers
Suitable for production
Suitable for production
Markéta Vrbasová
Partner, Head of Industrial & Logistics

Also you may be interested in these offers

The form was sent. Thank you.